本次為廠房辦公室設計裝修效果圖,辦公室設計面積1000平方,設計師為了打破空間單調的格局,拆除了原有中間部位樓板,將其上下貫通形成高大空間,在這里設計師將各色加建和自然融入其中,使之完全變身為整體環(huán)境的視覺焦點和活動中心。
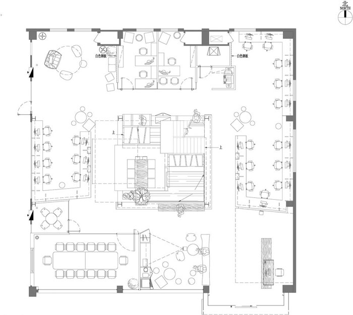
▼1層平面圖

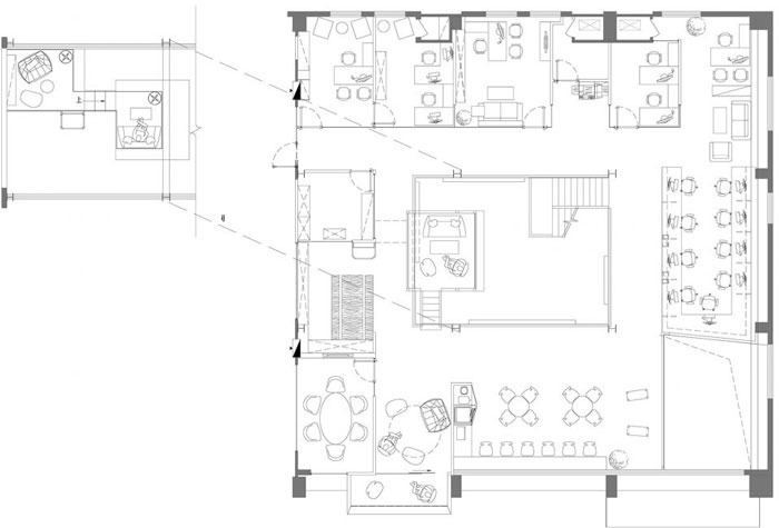
▼2層平面圖

▼前廳

▼前廳

▼前廳

▼空間概覽

▼入口外觀

▼中庭

▼植物和水景構成一幅和諧的天然圖畫



▼簡潔而通透的樓梯

▼鋼結構搭建的“樹屋”空間懸掛在中庭上方

▼VR體驗區(qū)



▼會議室

▼咖啡休息區(qū)

▼休閑區(qū)

▼材料室

▼位于樹屋頂部的瞭望塔

▼穿孔鋁板圍欄


▼辦公區(qū)

本次廠房辦公室設計裝修效果圖講解到此結束,設計師為了打破空間單調的格局,拆除了原有中間部位樓板,將其上下貫通形成高大空間。