本次為舊廠房改造辦公室裝修設計效果圖,設計師在設計中,以樸素、簡潔、工業(yè)為設計理念,這一系列的設計最終形成了清新、明亮、通風的空間,同時保留了空間沉穩(wěn)的工業(yè)感。
▼舊廠房改造剖面圖

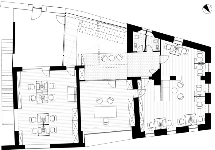
▼舊廠房辦公室一層平面

▼舊廠房辦公室二層平面

▼舊廠房辦公室入口

▼舊廠房辦公室接待區(qū)

▼舊廠房辦公室會議室

▼舊廠房辦公室樓梯

▼舊廠房辦公室二樓

▼舊廠房辦公室辦公區(qū)

▼舊廠房辦公室交流區(qū)

▼舊廠房辦公室洽談室

▼舊廠房辦公室洽談室

▼舊廠房總經(jīng)理辦公室

▼舊廠房總經(jīng)理辦公室

▼舊廠房辦公室衛(wèi)生間

▼舊廠房辦公室陽臺

本次舊廠房改造辦公室裝修設計效果圖講解到此結(jié)束,設計師以樸素、簡潔、工業(yè)為設計理念,這一系列的設計最終形成了清新、明亮、通風的空間,同時保留了空間沉穩(wěn)的工業(yè)感。
裝修風格 | 裝修攻略 | 深化設計 | 關于嵐禾 | 免責聲明 | 嵐禾保障 | 工裝網(wǎng) | 中式辦公室裝修 | 廠房辦公室裝修 | 辦公室裝修效果圖 | 金融辦公室裝修 | 教育培訓機構(gòu)裝修 | 科技辦公室裝修 | 公司辦公室裝修 | 辦公室裝修設計 | 民宿設計 | 聯(lián)系嵐禾
地址:杭州市西湖區(qū) 中國美術學院風景建筑設計研究總院(西斗門路) 20號 5B 郵編:310000 業(yè)務咨詢:0571-88091570 傳真:0571-88091570 E-mail: 1467724601@qq.com
杭州工裝裝修公司:m.yantaiche.com